Будівництво захисної споруди






Раді представити новий проєкт розроблений компанією «ДРІМБУДПРОДЖЕКТ», - Нове будівництво захисної споруди цивільного захисту (протирадіаційне укриття) за адресою: Дніпропетровська область, Дніпровський район, смт Слобожанське, вул. Будівельників, 10.
При розробці й проєктуванні даного обʼєкту, наші фахівці враховували та акцентували свою увагу в першу чергу на розробці дизайнерського концепту проєкту, сучасних технологічних рішеннях, підбору оптимального інженерного забезпечення і інженерних рішень, упоряджувальних роботах, а також врахування кліматичних умов та інженерно геологічних умов.
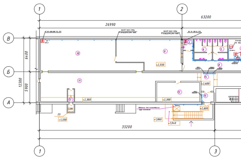
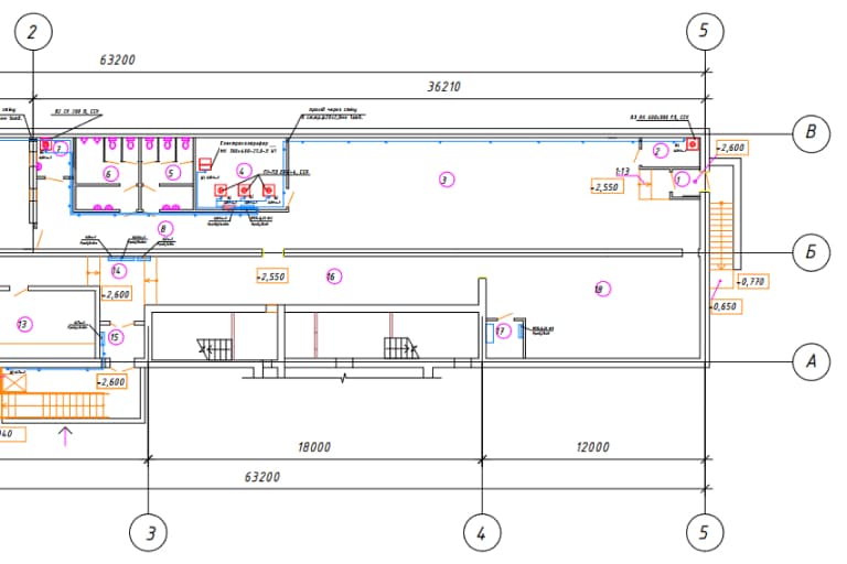
Згідно з завданням на розробку робочого проєкту, ПРУ запроєктована як окремо розташована заглиблена споруда, що одночасно задовольняє встановленим вимогам відповідно до функціональних призначень та має захисні властивості протирадіаційного укриття – група П-5.
Конструктивна схема будівлі – каркасно-монолітна. Просторова жорсткість та стійкість будівлі забезпечується сумісною роботою вертикальних елементів каркаса (стіни, колони та ядра жорсткості), горизонтальних дисків перекриттів і фундаментної плити.
Замовнику були надані всі необхідні та відповідні документи згідно з чинним законодавством України, при дотриманих всіх державних будівельних норм і вимог.