Капітальний ремонт харчоблока






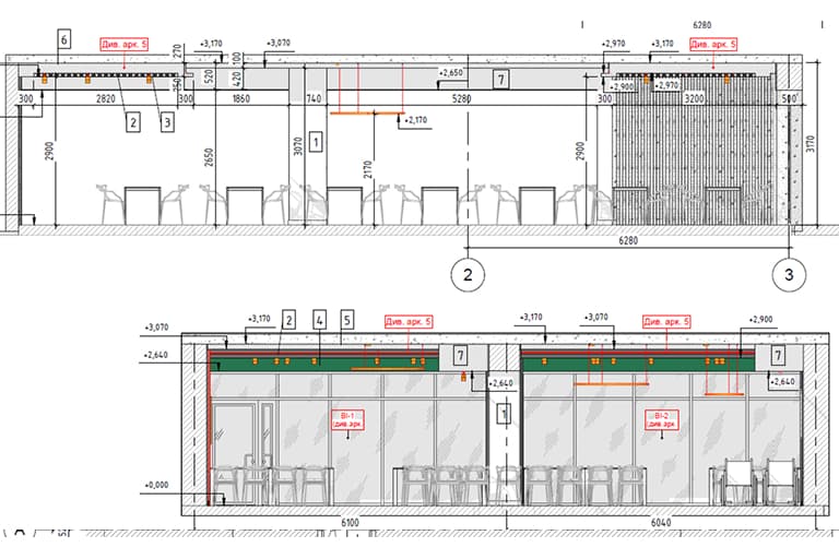
Представляємо один з проєктів компанії «ДРІМБУДПРОДЖЕКТ», а саме, капітальний ремонт харчоблока (їдальні) ліцею № 2 Підгородненської міської ради, за адресою: Дніпропетровська обл., Дніпровський р-н, м. Підгородне, вул. Державна, 2.
При розробці й проєктуванні даного обʼєкту, наші фахівці враховували та акцентували свою увагу в першу чергу на кліматичних умовах, сучасних технологічних рішеннях, підбору оптимального інженерного забезпечення, пожежній і техногенній безпеці, екологічній безпеці, санітарно-епідеміологічному добробуті, енергозаощадженні та енергоефективності.
Відповідну документацію було розроблено згідно з вхідними даними. При дотриманні вимог стосовно міцності, надійності, довговічності та архітектурно планувальних рішень. Були врахована пожежна безпека, техногенна безпека, заході стосовно захисту цивільного населення, враховані питання охороні праці, безперешкодного доступу осіб з інвалідністю та інших маломобільних верств населення.
Замовнику були надані всі необхідні та відповідні документи згідно з чинним законодавством України, при дотриманих всіх державних будівельних норм і вимог.