Проєктування
Ремонт конференц зали



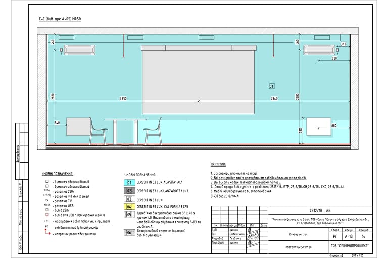
Ремонт конференц зали в офісі ТОВ «Оріль Лідер» за адресою Дніпровська обл., с. Єлизаветівка, вул. Хмельницького 1



Ремонт конференц зали в офісі ТОВ «Оріль Лідер» за адресою Дніпровська обл., с. Єлизаветівка, вул. Хмельницького 1