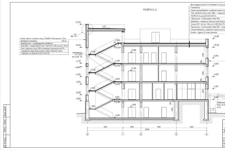
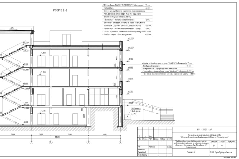
Відновлення будівель після обстрілів рф
Відновлення будівель після обстрілів - м. Святогірська



Комунальне некомерційне підприємство - Обласний госпіталь для ветеранів війни за адресою м. Святогірська



Комунальне некомерційне підприємство - Обласний госпіталь для ветеранів війни за адресою м. Святогірська